Seite :» Grillkota, Tipi «
Wir haben 2011 in unserem Garten ein Tipi errichtet. Deshalb habe ich eine Sechseck-Grundriss konstruiert. Im Anhang sind Bilder, chronologisch nach der Entstehung der einzelen Bauabschnitte aufgeführt. Ebenfalls verfasse ich, eine Aufbaubericht in Form einer "PDF.Datei", die kontinuierlich erneuert und ergänzt wird.
Der Schiefer wurde verlegt, ca. 2350 Stück habe ich angebracht, jede Schuppe wurde mit 3 Nägel fest gemacht, macht ca. 7000 Nägel. Der Kamin vollendet das Ganze. Habe ihn bei Boendgen-Baustoffe gekauft.
G r i l l k o t a _ 2 0 1 1 . p d f
G r i l l k o t a _ 2 0 1 1 . p d f / Stand 27.07.2011 L i n k s _ z u _ Q u e l l e n _ u n d _ P a r t n e r
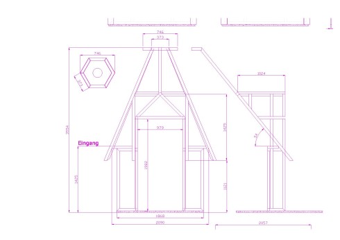
Sechseck-Grundriss, mit Eingangstür unten rechts.

Fundament eingeschalt ohne Rohre.

Fundament eingeschalt, mit Rohre.

Folie und Moniereisen eingebracht.

Platzierung im Garten.

Betonplatte gegossen, im strömenden Regen.

Brennstelle.

Brennstelle mit Eisenmatten und Standrohre für die Schwenkgrills, ich habe 3 Schenkgrills vorgesehen.

Eingeschalte Brennstelle, die Arbeiten zogen sich bis in der Nacht hinein. Auf dem Foto erkennt man die Standrohre und die Vierkantrohre zum Aufnehmen der Feuerschalen-Vierkanteisenstangen. Was für Wort!

Vierkantrohre & Standrohre, unten und oben abgedichtet.

Feuerstelle, Nachts während der Betonierung.

Brennstelle fertig gegossen

Fliesen für Innenraum

Gewegplatten und Stufe, Brennstellenplatten

Fliesen fast fertig

Blockprofilbretten ohne Anstrich

Sonntag bei schönem Wetter, die Hälfte der Bretter angestrichen, im Hintergrund die Konstruktionshölzer

Das Dach kommt

Seitenteil, mit Folie

Tipi, halbfertig im Garten

Türeinbau

Dachkonstruktion

Tür mit Gaube

6 Eckdachkonstruktion gegen Himmel, ist das nicht toll ?

Dach fast geschlossen

Dach von innen gesehen

Teerpappe aufgebracht

Innenausbau, Isolierung nur Lärmschutz

Elektrik

Seitenwand zum Boden versiegelt

Tipi Im Garten, die Vollendung naht

Rathschek - Schiefer RATH SIN300 20 * 15, linke Schuppen, von Mayen-Katzenberg, 2200 Stück, für ca. 27 mý Dachfläche, Stückpreis 0,42 €cent

Auszug aus der Rathscheckfibel

Zeichnung, Schieferreihen

Zeichnung

Zeichnung

Das Tipi sieht schon ganz ordentlich aus !
¦ Scandinavien¦ Bauhaus ¦ Max Bahr ¦ Eurohandel ¦ Rathscheck ¦ Boendgen ¦